| The five projects that presently make up this network of NavCenters are described in a number of documents on this website. The following URL Index provides a brief description of each URL. To access the documents, click on the masthead graphic at the left of each description. | | Even though you may have a primary interest in one of these 5 projects, it is a good idea to be familiar with all of them. Each is unique, yet, the whole has to work as a system. Also, there is much information in each individual project description that is relevant to all of them. | | The INDEX below is divided into the following sections: The Five Projects; Process; Documentation; Related Materials and Program Statement. | |  | Designing a NavCenter Network a hub and satellite system provides an outline of each project. This is the base document to which all the others are related. | |  | A Network of Centers Facility One Detailed Description describes the physical layout of NavCenter # 1,TECHNIQUE. | |  | NavCenter Two Design Development Notes & Details shows aspects of the existing campus, Floor Plans of each of the three levels of NavCeneter #2, MEMORY, and links to a large scale version and description of each floor level plan | | |  | Vanderbilt Children’s Hospital - Executive Offices The process of Continuous Interaction tracks the process of s project where the NavCenter environment and methods is being adapted to the executive function. | |  | Work Integrated Education - Building an Education Engine introduces the Teaching Modalities Model, developed for the Corps of Engineers in 1983, composed of the five components of life-long learning. | |  | ValueWeb - The Mechanics provides a look at some of the underlying background and theory of what makes up a valueWeb; includes a basic book list. | |  | Our Practice A poster illustrating the approach to architecture of the HabitatMakers [link] ValueWeb: MG Taylor, SFIA Architects-Master Builders, AI, et.al. Click on the various pictures and words for more detail. A print version is provided. | |  | NavCenter - What? Why? How to Make One The basic “argument” for why NavCenters along with the basic Models and concepts that are necessary to their operation. | |  | 1982 THERE NavCenter Vision showing the iterative, collaborative, technology augmented, Taylor work processes. | |  | Matt’s Technical System Creative Augmentation describing the integration of work processes, environments and tools to augment human creativity. | |  | RemotePresence by MagicWindow introduces the concepts of RemotePresence, the MagicWindow project and Rapid Prototyping. | | | Four Projects - Redefining the Urban Work Landscape looks at the issue of work in an urban setting and how knowledge-worker satisfaction and health can be achieved. | | | These articles, themselves, have many links that are worth following if you want to go further in to the material. These will provide a basic overview to the MG Taylor approach to making and managing creative environments. | | |
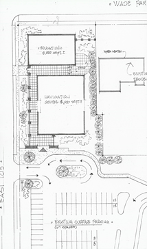
|