NavCenter Facility layout One
by client’s staff architects
 
 
 
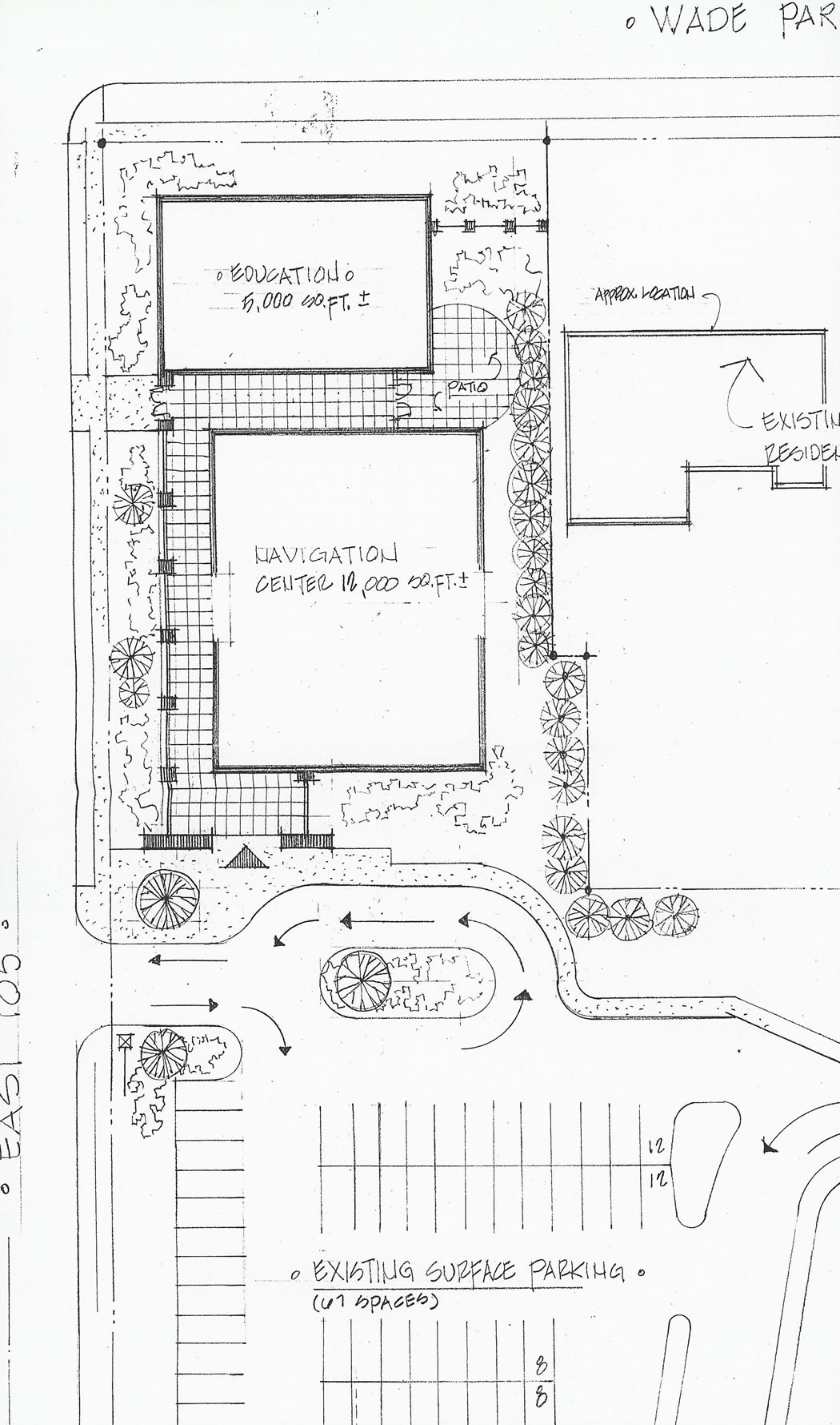
This is a “proof-of-concept” sketch to demonstrate that the Basic space requirements can be met on the three lots with a one story building. Parking will be accommodated by using the parking area that now exists West of the Parking Garage and South of the new property. This layout shows the educational facilities separate from the NavCenter space with landscaping and court yards on all sides of the building.
 
 
This layout makes a good point of departure. One can imagine the walls between the education staff area and the NavCenter being sliding glass so that the two functions can joined by connecting with an operable glass enclosed court yard. Layout Two builds on this and incorporates the ideas described in the NavCenter Network page; the layout Two is aimed at increasing functionality and art while maintaining a simple urban scale.
 
link: THEME • link: Design Two
posted: June 3, 2003
NavCenters - A Network in Development
<script src="http://www.google-analytics.com/urchin.js" type="text/javascript">
</script>
<script type="text/javascript">
_uacct = "UA-1597180-1";
urchinTracker();
</script>